Одноступенчатые горизонтальные центробежные насосы Caprari NC 150-200 1450
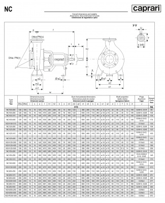
Одноступенчатые горизонтальные центробежные насосы консольного типа с основными размерами и характеристиками в соответствии со стандартами EN733 (DIN 24255).
Подробнее
Цена: По запросу
Нашли дешевле?
Узнать цену
Наши менеджеры обязательно свяжутся с вами и уточнят условия заказа
Производитель оставляет за собой право вносить изменения в характеристики оборудования без предварительного уведомления. Характеристики, вес, размеры, цена и любые другие указанные в каталоге данные не являются окончательными. Окончательные данные уточняйте у менеджеров по продажам.
Описание
Одноступенчатые горизонтальные центробежные насосы консольного типа с основными размерами и характеристиками в соответствии со стандартами EN733 (DIN 24255). Изготовленные с системой обратного выдвижения, они используются в системах отопления и кондиционирования воздуха в холодильных установках, водоснабжении, промышленности, ирригационных и противопожарных установках. Доступны версии с механическим уплотнением и рабочим колесом из чугуна или нержавеющей стали.
Характеристики
Задать вопрос







