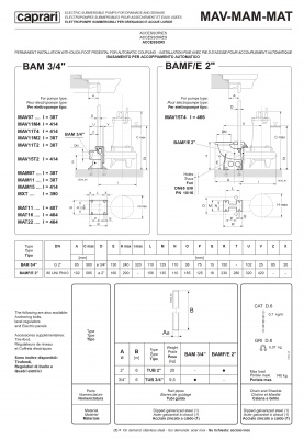
Дренажные насосы Caprari для загрязненной воды D, M & MAT MAV
Насосы Caprari D, M & MAT для загрязненной воды удовлетворяют всем необходимым требованиям для обработки поверхностных дренажных вод.
Подробнее
Цена: По запросу
Нашли дешевле?
Узнать цену
Наши менеджеры обязательно свяжутся с вами и уточнят условия заказа
Производитель оставляет за собой право вносить изменения в характеристики оборудования без предварительного уведомления. Характеристики, вес, размеры, цена и любые другие указанные в каталоге данные не являются окончательными. Окончательные данные уточняйте у менеджеров по продажам.
Описание
Насосы Caprari D, M & MAT для загрязненной воды удовлетворяют всем необходимым требованиям для обработки поверхностных дренажных вод.
Этот широкий ассортимент моделей включает:
Этот широкий ассортимент моделей включает:
- легкие электрические насосы, специально разработанные для бытового использования и простые в обращении.
- надежные насосы для строительных площадок, способные справиться даже с самыми тяжелыми условиями эксплуатации.
Характеристики
Задать вопрос






